503 11Th Ave Belmar, NJ 07719
- 4 Bedrooms, 3 Baths
Price 2,699,000
View On Map > | Lot sizes: 50×145
Beautiful New Construction – Open Floor Plans
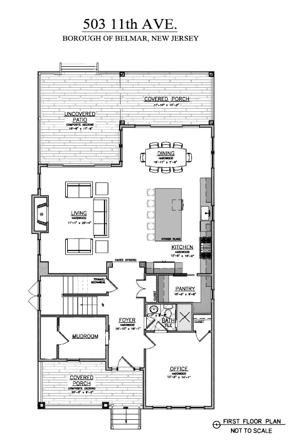
This stunning new construction home feature a spacious open floor plan designed for modern living. The main level of the house offers a bright and inviting layout with a seamless flow between the kitchen, dining, and living areas — perfect for entertaining or family gatherings.
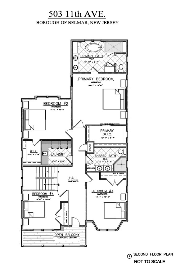
The home offers generous bedrooms including a luxurious primary suite with a walk-in closet and private bath. Three full bathrooms feature elegant tile work and quality fixtures.

Enjoy the comfort, style, and convenience of a brand-new home built with today’s lifestyle in mind.
Contact Us or call 732-905-0005 to discuss these property listings
or schedule a contractor consultation
503 11th Ave. Belmar, NJ 07719
Kitchen & Appliances:
- Upgraded Cabinets created with expert craftsmanship
- Under cabinet lighting
- Stainless steel appliances
- Quartz countertops & back splash (Color Veda)
- Pot filler
- Walk in Pantry with custom cabinets
Exterior Features
- Detached Garage with heat and upgraded garage door
- Paver Driveway & Walkway
- Outdoor lighting fixtures and recessed lights at front entry.
- 30 Year Dimensional roof shingles
- Anderson 100 series windows
- Custom decking with white composite rails and aluminum balusters, soffit, and wrapped columns (front and rear)
- Gas line hookup for outdoor grill.
- Sprinkler system
- 3 frost-free exterior hose bibs • Solid Privacy Vinyl Fencing
Interior Features
- 9′ First Floor ceiling height with open floor plan
- Spacious office or guest bedroom
- Mudroom
- Large primary bedroom with a walk-in closet featuring a custom closet system and a custom tile bathroom with a freestanding clawfoot tub
- First-Floor Gas Fireplace with custom wall
- Hardwood flooring
- Crown Molding in selected areas
- Laundry Room includes washer, dryer, cabinetry with sink
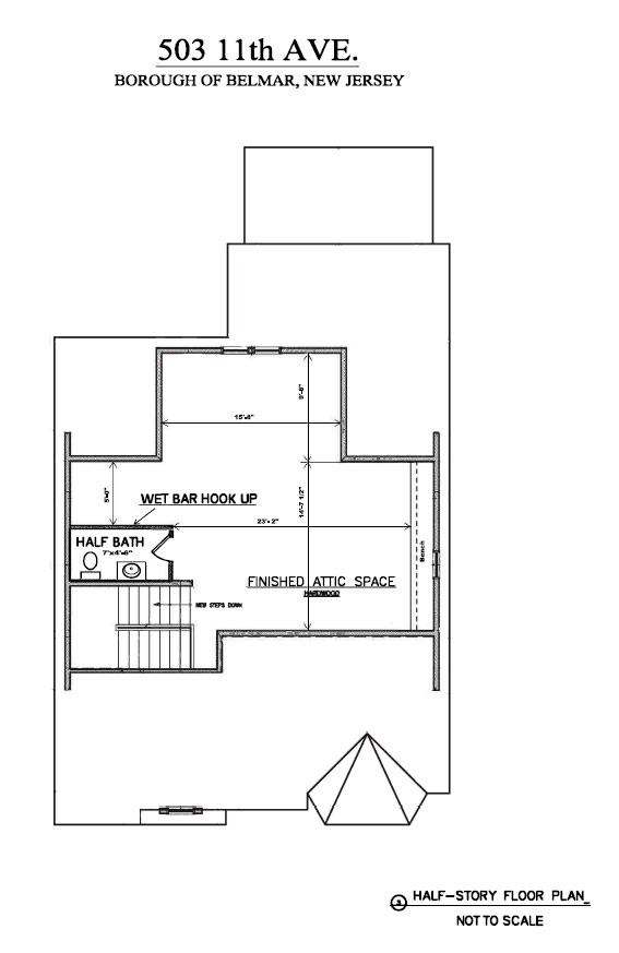
- Large third-floor bonus room with ½ bath, accented with custom wainscoting, and a hookup for a future wet bar
- Two-zone gas forced hot air heating and cooling system, Energy-efficient gas furnaces with 13 seer Central Air
- Tankless hot water heater
- 200 AMP electric service
- Decorative lighting fixtures throughout including recessed lights • Hardwired smoke detectors with battery back-up on each floor
- Alarm System • Wi-Fi Access Points on each floor
Download Floorplan .pdf (3 floors)
Material and features subject to change

New Home Construction in Belmar, New Jersey. Front elevation illustration.

Enjoy this gallery of photos of the home. Click on a thumbnail to view the larger image.












